
水電改造是裝修環節中必不可少的也是最重要的一個環節,對于追求舒適生活的人們來講,水電改造是需要仔細研究和精心科學設計的。個人建議,不論您的想法多少,改動大小,最好請專業水電公司來幫您設計改造,因為這樣做才能使您的生活更加舒適方便。下面小編給大家講解水電改造的步驟及注意事項!

水電改造的步驟
1、選購建材
水電改造由于是隱蔽工程,所以也是不易被人注意的一個環節。假如這個環節處理得不好,不但會直接影響日常使用,甚至可能危害人身和財產的安全。
2、檢驗試壓
切記水電改造完畢 一定要驗收,等到其他項目施工完畢再發現問題已為時已晚。
3、墻面開槽
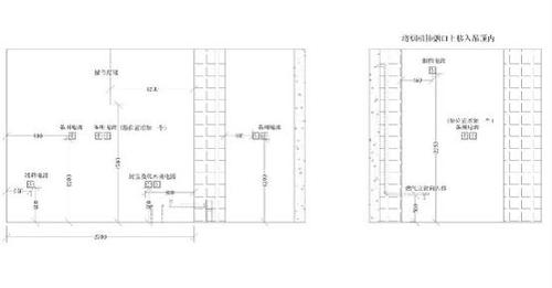
根據家庭布線設計圖紙,結合墻上的點位示意圖,用鉛筆、直尺或墨斗將各點位處的暗盒位置標注出來。
4、埋入管線
電線要正規產品,線管、暗盒一定要阻燃的。因為是隱蔽工程,馬虎不得。 水路上,水管也要正規可靠的產品。不管是哪種接管方法,一定要可靠。
5、封槽
固定暗盒:除廚房、衛生間暗盒要凸出墻面 20mm 外,其他暗盒 與墻面要求齊平。幾個暗盒在一起時要求在同一水平線上。固定 PVC 管:地面PVC管要求每間隔 一米 必須固定。PVC管要求每間隔兩必須固定; 墻槽 PVC 管要求每間隔一米必須固定。 封槽:封槽后的墻面、地面不得高于所在平面。
水電改造注意事項
(一)、水電改造的第一步是水電定位,也就是根據用戶的需要定出全屋開關插座的位置和水路接口的位置,水電工要根據開關、插座、水龍頭的位置按圖把線路走向給用戶講清楚。
(二)、水電定位之后,接下來就是打槽了。好的打槽師傅打出的槽基本是一條直線,而且槽邊基本沒有什么毛齒。注意打槽之前,務必讓水電工將所有的水電走向在墻上劃出來標明,記得對照水電圖,看是否一致。
(三)、水路改造時,注意周圍一定要整潔。水路改造訂合同時,最好注明水路改造用的材料。另外水路改造中要注意原房間下水管的大小,外接下水管的管子最好和原下水管匹配。
(四)、電路改造中,應注意事先要想好全屋的燈具、電器裝在什么地方,以便確定開關插座的位置,同時要注意新埋線和換線的價格是不一樣的。門鈴最好買無線門鈴。