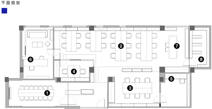
本次為長方形辦公室平面布置圖,設計師用不同的手法處理每一個功能空間的層次,希望能夠賦予每個功能空間特有的性格,這些擁有不同性格的空間穿插在一起,組成一個既復雜又簡單的辦公室設計方案。
▼辦公室平面規劃

▼辦公室模型

▼辦公室模型

▼辦公室模型

▼辦公室模型效果表現

▼辦公室模型效果表現

▼辦公室效果表現

▼辦公室效果表現

▼辦公室效果表現

▼辦公室效果表現

▼辦公室辦公區效果

▼辦公室茶水間效果

▼辦公室會議室效果

本次為長方形辦公室平面布置圖,本次辦公室是一個長方形的空間,設計師希望能夠賦予每個功能空間特有的性格,這些擁有不同性格的空間穿插在一起,組成一個既復雜又簡單的辦公室設計方案。