本次為服裝公司新辦公室裝修設計效果圖,辦公室設計面積800平方,設計師在辦公室設計中,以東方禪意、開放為辦公室設計理念,目的就是希望打造一個靜謐的辦公空間。
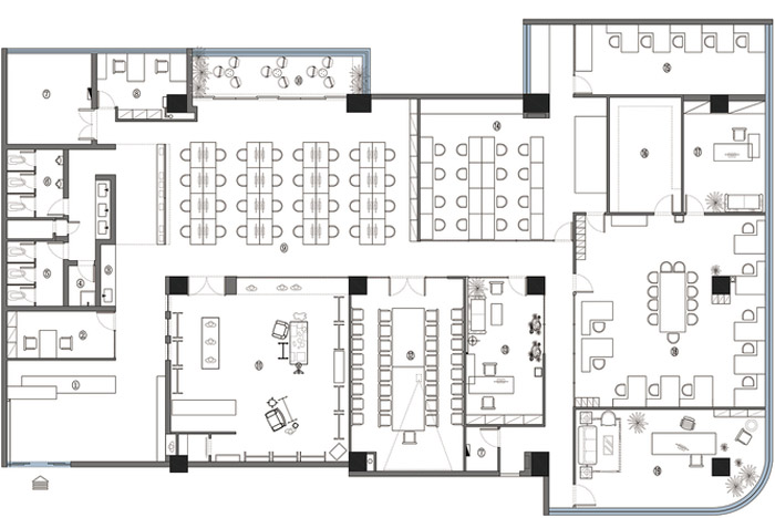
▼東方禪意辦公室平面圖

▼東方禪意辦公室前臺

▼東方禪意辦公室走廊

▼東方禪意辦公室過道

▼東方禪意辦公室茶水區(qū)

▼東方禪意辦公室辦公區(qū)

▼東方禪意辦公室辦公區(qū)

▼東方禪意辦公室辦公區(qū)

▼東方禪意辦公室辦公區(qū)

▼東方禪意辦公室會議室

▼東方禪意總經理辦公室

▼東方禪意辦公室過道

▼東方禪意辦公室展區(qū)

▼東方禪意辦公室展區(qū)

▼東方禪意辦公室展區(qū)

▼東方禪意辦公室展區(qū)

▼東方禪意辦公室試衣間

本次為東方禪意辦公室裝修設計效果圖,辦公室由700平方辦公區(qū),和100平方展區(qū)構成,整個空間傳達出一種質樸、時尚的感覺,表示著企業(yè)對質量、樣式的雙重融合。
案例推薦
>>>中式辦公室設計效果圖